Understanding Structural Engineering Drawings . Weight per linear foot strength: There are two major types of drawings:
Bestseller Structural Engineering Drawings Pdf from actbookdownloads.blogspot.com
The structural drawings communicate the planning of. Should have a fairly good draft done by the end of 2017. The intent of this video is to provide ins.
Bestseller Structural Engineering Drawings Pdf
Structural drawings are also used for the preparation of the reinforcement drawings. Dedication to the students with the hope that this work will stimulate an interest in civil engineering drawing and provide an acceptable guide to its understanding. Regards wahaab siddique student, civil engineering department (session 2018) wah engineering college,wah cantt,pakistan. Artistic drawings and technical drawings.
Source: knowledge.autodesk.com
They outline the dimensions and kinds of materials to be used, also because the general demands for connections. Structural design is a systematic and iterative process that involves: Therefore, an engineering drawing often contains more than just a graphic representation of its subject. The preparation of a structural drawing is the last stage of a structural design. A beginner's guide.
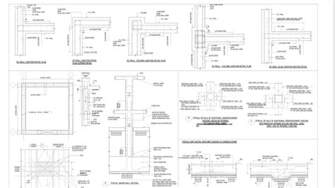
Source: www.pinterest.com
Read this drawings in conjunction with architects' and other engineers' drawings and specifications, and such other written instructions as may be issued. Nominal height of beam 8.2: A brief tour of a set of structural design drawings for a building from the perspective of a structural engineer. Communication (technical/engineering drawing) may prove irreplaceably useful. A generic engineering drawing can be.
Source: silicongccdubai.blogspot.com
They outline the dimensions and kinds of materials to be used, also because the general demands for connections. I would expect your understanding to improve a lot, and it won't take that long. A beginner's guide to structural engineering. Engineering drawing (graphic portion) the information contained in the drawing itself will be covered in subsequent modules. Hss (fy=42ksi), std pipe.
Source: complexcad.com
An engineering drawing is a means of clearly and concisely communicating all of the information necessary to transform an idea or a concept in to reality. The intent of this video is to provide ins. I would expect your understanding to improve a lot, and it won't take that long. This section is not fully developed. The structrual engineering institute,.
Source: paintingvalley.com
Usman, it???s normal when starting out to be in awe of the senior engineer???s abilities. They do not address architectural details like surface finishes, partition walls, or mechanical systems. Artistic drawings and technical drawings. Should have a fairly good draft done by the end of 2017. Only solid lines on the drawing represent visible edges.
Source: actbookdownloads.blogspot.com
Basics of civil engineering drawing full book. A beginner's guide to structural engineering. Engineering drawings (aka blueprints, manufacturing blueprints, prints, manufacturing prints, dimensional prints, drawings, mechanical drawings, and more) are a rich and specific outline that shows all the information and requirements needed to manufacture an item or product. Broken lines that appear in the drawing represent other aspects that.
Source: www.eng-source.com
In these drawings all the details that we need to follow during site construction is being reflected. The preparation of a structural drawing is the last stage of a structural design. An engineering drawing is a means of clearly and concisely communicating all of the information necessary to transform an idea or a concept in to reality. Hss (fy=42ksi), std.
Source: www.directorsteelstructure.com
Dedication to the students with the hope that this work will stimulate an interest in civil engineering drawing and provide an acceptable guide to its understanding. Weight per linear foot strength: Nominal height of beam 8.2: A brief tour of a set of structural design drawings for a building from the perspective of a structural engineer. The intent of this.
Source: www.7ces.com
Regards wahaab siddique student, civil engineering department (session 2018) wah engineering college,wah cantt,pakistan. ??? many structural engineering detail drawings are read using the architect???s scale. Therefore, an engineering drawing often contains more than just a graphic representation of its subject. Dedication to the students with the hope that this work will stimulate an interest in civil engineering drawing and provide.